
裝潢的原則是基於結果回推過程,因此,確認自己想要的裝潢是最重要的。 之前幫一位學長修改天花板改3個崁燈的位置,水電一天工,木工修補跟油漆修補一天工,僅工資就要6000元,加上材料收費7000元,乍看價格,一組崁燈更換位置居然要2300元 ! 跟網路上的單價對比,這根本是天價,但這就是修改的成本,也凸顯出修改成本的驚人。因此,確認清楚自己要的裝潢是相當重要的。
以上的道理大多人都知道,我也知道,但我還是常常忘記,因此是提醒自己要注意的事項,分享給大家。 首先裝潢流程如下:
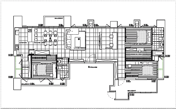
一、平面圖配置圖的確認。 在這個階段,我們希望客人要確認的東西如下
1. 自己的生活習慣
2. 物品擺設、收納位置
3. 整理自己居家的電器。看是否有用電量特別高的電器,分辦高耗電的電器,簡單的判斷,會加熱的電器。微波爐、吹風機、熱水機...等。
4. 確認管委會的要求。 是否需要申請室內裝修? 可以施工的時間? 現場保護的要求?

二、現場放樣平面圖、確認水電、冷氣位置需求、確認拆除的品項位置。 參考文章: https://jason55ee.pixnet.net/blog/post/556843192
這個階段,木地板廠商最好可以來場勘確認一下了。
三、保護+拆除清運。 提醒自己,廁所上方要儘量往上打,不然容易收尾不順。 玄關門的打除清運安排跟玄關門安裝時間,一般要到泥作階段,同一天完成。

四、二次放樣確認認水電、冷氣位置需求。
這個階段有涉及到水電的部分,都要確認。 參考文章:https://jason55ee.pixnet.net/blog/post/556843192

1.廁所,比如說廁所乾濕分離的濕區是否需要降板? 廁所乾區是否還需要做洩水? 暖風機的規格,要做搖控的,還是有線路的? 挑選的衛浴設備。
2.廚房配置樣式。 廚房的地面排水是否需要 ? 廚房洗碗機的規格?
3. 電器位置,有掃地機器人嗎? 手持事吸塵器? 空氣清淨機? 除濕機? 小朋友所需的消毒鍋、熱水加熱壺...等。
4. 冷氣位置確認,排水確認。排水往往是最大的問題
5. 網路、電視、電話弱電配置。通常會建議網路做兩回路,一個在電視櫃,一個在書房或是主臥。 記得要確認,網路是中華電信,還是cable。 看MOD還是第四台
6. 涉及到下階段要砌磚,要確認門、鋁窗要開的位置跟尺寸。(注意)
7. 這個階段,最好確認玄關門樣式,要準備下單了。後續,打除清運安排跟玄關門安裝要安排泥作階段,同一天完成。


8. 系統櫃這個階段也要初步做出規劃了,相對應的燈具,開關插座要規劃出來
五、第一階段水電、第一階段冷氣放管線、砌磚。 前面確認的好,水電配置施工跟砌磚就沒有太大問題。
這個階段要確認鋁門窗的樣式、磁磚、收邊條、填縫劑、門檻、門的樣式,此外,要注意廁所門框的選擇,如果是塑膠框,要提早選,因為泥作階段就要站起來了。 如果是木框,還可以等木工階段再確認。 這個階段,木地板廠商一定要來場勘確認了。 廁所降板的收尾方式不鏽鋼條、磁磚面、乾燥區需要洩水嗎? 濕區排溝的拿過去的時機。
六、泥作 + 鋁門窗站框
這個階段要提早確認木工的樣式跟尺寸, 要確認櫃子樣式、外觀貼皮、櫃內樣式、取手方式、門擋五金、把手五金、 菜籃的尺寸、軌道尺寸、門的樣式、門的尺寸跟作法


七、木工
1.提早確認油漆顏色跟位置
2. 系統櫃在天花板、隔間作完之後,就可以做二次丈量 跟 準備確認下單了。 因為系統櫃下單到可以施工,時間約要2-3周。


八、油漆
衛浴設備跟要安裝的燈具可以進貨
九、系統櫃、水電收尾、冷氣收尾、熱水器安裝
在地板施工之前,儘量把能做的都做好。避免地板完成後,工班頻繁地進來踩踏
十、地板
現在主流是超耐磨地板 跟 SPC地板,這兩種地板都要提早確認原本地面是否平整,這個要很早就確認了。最好時間是拆除之前,如果地面澎共或是太不平整,拆除階段可以拆除清運這些區域。 最晚也要在泥作施工之前。
十一、清潔收尾
這邊也要說一下,細部清潔最好可以一周之後在清潔。讓裝潢後的粉塵可以沉澱下來。 我們裝潢完之後,有很多小微粒粉塵,這些粉塵主要來自油漆研磨的批土、油漆噴漆、地板的裁切,這些粉塵也就是我們常聽到的pm2.0,它很小,要一段時間才能沉澱,或是透過通風、空氣清淨機處理掉。因此,裝潢後馬上清潔,這些粉塵會很難清掉。
但是大家都急著搬家,因此,搬家進入後,大多會需要面對二次清潔的問題,這點也要跟大家說明一下了。
十二、油漆收尾、水電收尾
基本上,連清潔都會弄髒油漆,所以油漆大多要在來一次,有些客人看到油漆弄髒,會請我們一直過去收尾,這點要跟大家說一下,不要緊張,最後會在收尾。水電也是,我們總是會漏掉一些配件、開關不順、換燈具...等,這個最後都會在處理的。
十三、可以考慮放置植物淨化空氣

留言列表